07-11-205 overdracht sleutel. Vanaf deze dag gaat de moestuin echt van start en is het project officieel een feit. Met een oppervlakte van maar liefst 100m2 en een handig huisje voor opslag, zijn de mogelijkheden om aan de slag te gaan enorm. Zoals je kunt zien op de foto is het terrein momenteel nog een grote puinhoop en ligt er overal rommel, maar dat is eigenlijk maar goed ook, want zo hebben we genoeg te doen. Het duurt nog wel een behoorlijke tijd voordat het voorjaar aanbreekt, wat mij gelukkig voldoende tijd geeft om alles goed voor te bereiden en er iets moois van te maken.
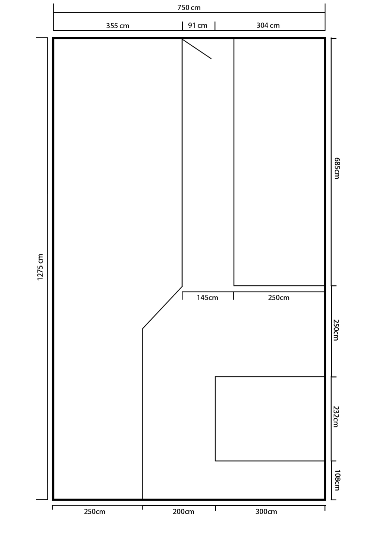
Hier al wat foto’s van de tuin en de tekening zoals het er straks moet komen uitzien.




Zoals je ziet is het nog een grote chaos, jammer dat mensen het zo achterlaten voor anderen. Wordt vervolgd…

